A Douglas cafe which had been operating without planning permission has submitted an amended application with planners.
The owners of Tradesman Cafe in Douglas Head Industrial Estate withdrew their previous application after planners were surprised at the changes from their original plans.
The new application (17/01160/C) reflects the growth in size and popularity of the cafe which has expanded into evening meals and Sunday roasts.
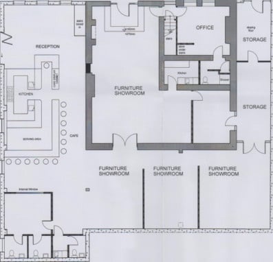
Under the original application, the cafe was only supposed to be a small part of the building, with the rest being used for a joinery workshop, furniture showroom and a retail area.
However, the cafe has grown in the building and now occupies a considerable section of the ground floor and occupies a space that was formerly indicated by a floor plan to be the furniture showroom.
In a letter to Petromanx Holdings Ltd which owns the Tradesman Cafe, principal planning officer Chris Balmer said: ’We certainly have initial concerns of the entire ground floor being used as a café.
comfortable
’We potentially felt comfortable with the principle of the use of a small section of the overall building being used as a café (as originally proposed), essentially being an ancillary part of the overall larger use of the site.
’Now the whole of the ground floor would be a café within a large building which is within land designated as industrial use under the Douglas Local Plan and also the Draft Eastern Area Plan.
’Accordingly, we have substantial reservations of the recently submitted scheme.’
However, the cafe has now submitted new plans ,which includes a new floor plan for the ground floor which shows a significantly larger cafe area. The application is pending a decision.
The cafe, which operated 24 hours a day during the TT, is currently still serving.
.png?width=209&height=140&crop=209:145,smart&quality=75)


Comments
This article has no comments yet. Be the first to leave a comment.