Braddan Commissioners have submitted a planning application (19/01008/B) for the erection of a toilet block with seating area and canopy.
The local authority wants to put the new public facilities at Cronk Grianagh Park in Strang, adjacent to the existing skate park.
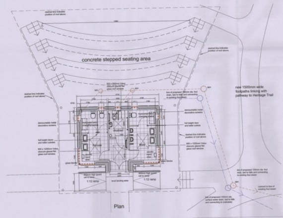
Under the proposals, the seating would be done as concrete steps with the canopy covering the seating area.
In its application, Braddan Commissioners said it will need to build a new sewer pipe across the field, which will then connect into the main system.
And as part of the plans, the local authority wants to be build a new walkway to the block which will continue down past the skate park and link up with the footpath which joins onto the heritage trail.



Comments
This article has no comments yet. Be the first to leave a comment.