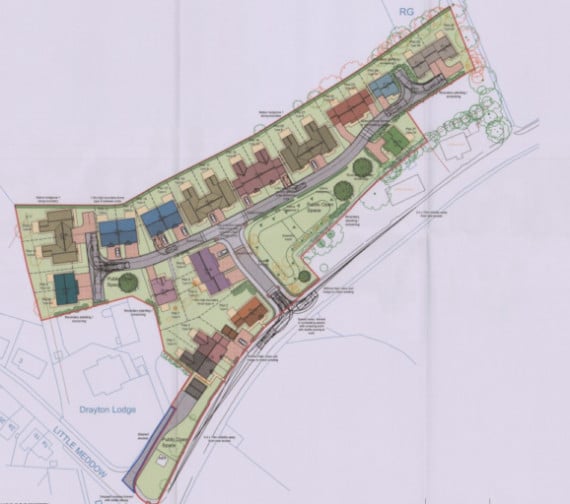
A developer is seeking permission to build 27 new homes in Andreas.
Keldevelopments Ltd has applied (20/00740/B) to build the homes at the former Dale Nurseries on Oatlands Road.
The 1.23 hectares site includes both brownfield and greenfield and would be next to the existing Little Meadow housing estate.
If approved, the site would include two, three-bed affordable semi-detached houses and three, three-bed affordable houses.
The scheme also includes four two-bed semi-detached bungalows, one two-bed semi-detached bungalow with a detached garage, three two-bed semi-detached bungalows with attached garages, six two-bed link-detached bungalows, two four bed houses and two three-bed semi-detach houses, a three-bed house, two three-bed link-detached houses and one two-bed bungalow.
While a mixture of housing will be built, the developer has chosen natural stone wall cladding, chimneys and slate-effect tiles to give the homes a traditional and similar appearance to neighbouring properties.
Because of the narrow frontage of the site onto Oatlands Road, it is proposed to locate the three bungalows fronting this road with two plots accessed sharing a single point of access.
The remaining houses have been located further away from Oatlands Road and sited ’so as to create a varied street scene with no fixed building line’.
Area of landscaped open space are to be provided as part of the proposed development and some trees would need to be felled.
However, Keldevelopments Ltd has included plans to plant native Manx trees, sod hedges and other boundary planting in order to assist with the site’s integration into its surroundings.
Previously, the planning committee approved an application (18/00980/B) on the site for 17 houses.
.jpg?width=209&height=140&crop=209:145,smart&quality=75)

.jpg?width=209&height=140&crop=209:145,smart&quality=75)

Comments
This article has no comments yet. Be the first to leave a comment.